Elegantly nestled within Lawren Harris Park, the building enjoys the best of Toronto’s natural and urban offerings. As it overlooks the Rosedale Valley ravine, lush landscapes can be viewed to North and East, while the City’s bustling cosmopolitan perks only steps away at Yonge and Bloor.

Image: The OAA Headquarters
Image Credit: Panda Associates
Image: Construction of the first permanent OAA Headquarters
Image Credit: Panda Associates
Completed in 1954, 50 Park Road was designed as the first permanent headquarters for the Ontario Association of Architects. It was the result of a design competition won by John B. Parkin Associates, one of the province’s leading modernist firms at the time, with John C. Parkin as project architect. The new headquarters was critically acclaimed as a landmark modern building in Toronto in the press and architectural publications of the period. It was also successful at providing a unifying focal point for Toronto’s architects, with its high-profile design injecting renewed pride and energy into the profession at a critical time in the city’s development.
Image: Original exhibition gallery ramp
Image Credit: Panda Associates

Image: Original office interior
Image Credit: Panda Associates
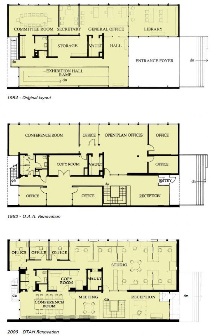
Over the four decades that the OAA occupied the building, they maintained the exterior appearance with only minor changes. However, due to growing membership within the organization and increased need for administrative and archival space, the OAA underwent a number of interior renovations that compromised the spacious and open nature of Parkin’s original design. The generously proportioned entry foyer was scaled down in 1974, and again in 1982, at the same time that the feature exhibition hall ramp was removed, and additional partitioned office areas were added.
Image: Floor Plans comparison
Image Credit: DTAH
In 1992, when the OAA moved to their new building in Don Mills in 1992, DTAH purchased the building and carried out renovations, incorporating the functional requirements of a contemporary design office, while at the same time attempting to recreate the sense of openness, simplicity and spatial clarity of the original building. DTAH reintroduced open studio spaces, and relocated the boardroom, now overlooking the adjacent Group of Seven Studio Building – a National Historic Site. Additional renovations have been made overtime, most recently in 2009, in an effort to keep the space up-to-date, and preserve the architectural features of the heritage building.
Image: DTAH
Photo Credit: Alexi Hobbs
The project is one of the first modern buildings in Toronto to be listed on the City of Toronto Inventory of Heritage Properties, followed by designation under Part IV of the Ontario Heritage Act in 1991, then recognized as an OAA Landmark Building in 2004. Its evolution exemplifies how buildings can be adaptively re-used to reflect contemporary design excellence and accommodate new user needs.
This post is forms part of our blOAAg fall series “Renovation + Relocation” exploring renovation stories by local architects from the profession’s point of view. Check out the other posts in our series for more stories from Ontario Architects!