Location: Grand Bend, ON
Architects: William J. Krohn Architect in association with VELD Architect
Date of completion: 2016
Nominated by: Lisa M. Thompson, MPP (Huron—Bruce)
Ontario has long been the heart of Canada’s winemaking industry with over 180 wineries producing 71% of the total Canadian wine volume, and much of this industry has been focused in one of the province’s three designated viticultural areas – Niagara, Lake Erie’s north shore, and Prince Edward County. However, a growing interest in wine culture in Ontario has led to the establishment of new viticultural regions by pioneer wineries – opening new possibilities for winemaking and tourism in the province.

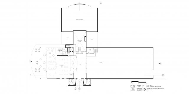
Site Plan courtesy of William J. Krohn Architect
Having just opened its doors to the public in 2016 in Huron County,
Dark Horse Estate Winery is one of these pioneer wineries. With eight hectares of grapes and a 31,000 square foot facility containing everything a winery could need – from production facilities to tasting rooms and event space – Dark Horse seeks to establish a new industry in Huron County and the surrounding region.

Courtesy of William J. Krohn Architect
The care that has been taken in the design of the facility is a matter of good business. In the competitive world of viticulture tourism, wineries are constantly looking for new ways to attract tourists – more so when having to compete with long established viticulture regions. By creating a landmark destination, Dark Horse aims to gain a competitive edge in attracting tourists and wine lovers to the nascent wine region.

Courtesy of William J. Krohn Architect
Throughout its design, the winery seeks to simultaneously celebrate the surrounding rural setting and the finesse and attention to detail required in the crafting of good wine. Its massing is reminiscent of a livery stable – inspired by the owner’s love for horses - and its rich material palette evokes the surrounding countryside with rustic stone masonry and plentiful use of reclaimed lumber. Reclaimed timber columns provide a rustic contrast to the sleek contemporary polished concrete floors. Below the main floor, an elegant concrete vaulted ceiling provides space for a barrel cellar as well as a dining and cocktail area featuring a 30’ sawn tree banquet table.

Sections courtesy of VELD Architect; Picture courtesy of Dark Horse Estate Winery
Programmatically, the winery is a complex grouping of retail, social, and industrial spaces. Through careful design consideration, these functions have been distributed to make best use of solar orientation and different solutions have been employed for daylighting – responding to the sensitivity of each program. Towards the south end of the building, a large overhang provides shading for the patio and the large glass expanses that provide views towards the vineyard. In the production space, a shaded clerestory window allows daylight into the space without affecting the temperature of the interiors – essential for the winemaking process.

Sections courtesy of VELD Architect; Picture courtesy of Dark Horse Estate Winery
Dark Horse Estate Winery marks an important and exciting milestone in the nascent wine region of Lake Huron County, one where architectural excellence and great wine go hand in hand as they seek to establish a new agricultural and tourism industry in the region.
This post forms part of our World Architecture Day Queen’s Park Picks 2016 series in which we asked Ontario’s Members of Provincial Parliament to nominate a prominent building, past or present, in their riding for a chance to learn more about it. Check out the rest of the series to learn more about Ontario’s great architecture.