In this post of our blOAAg Fall Series, “Renovation + Relocation”, we are treated with a story on a renovation/re-purposing project recently completed in Toronto.
Location: Toronto, ON
Architects: Pylons Architecture Inc.
Date of Completion: August 2017
From the Architects:
Toronto is one of the biggest cities in the world and most versatile, which in turn means continuously evolving and changing, offering even the most experienced architect a unique chance to explore and learn. Being almost 200 years old, not every opportunity of development comes as a new build. A lot of developing in Toronto--especially around the city core-comes as a renovation project.

Image: Before - Front Elevation
Photo Credit: Pylons Architecture Inc.

Image: Before- Roof Patio
Photo Credit: Pylons Architecture Inc.

Image: Before- Lobby
Photo Credit: Pylons Architecture Inc.
Pylons Architecture had this distinct opportunity to be involved in an artistically unique project in downtown Toronto; I call it so because we were asked to reconfigure the whole building changing not only its state but most importantly its purpose.

Image: Proposed Exterior Elevation
Image Credit: Pylons Architecture Inc.
We were originally approached by a remarkable developer who’s quite passionate about the city and its growth. The goal he had in mind was to transform a two-storey dysfunctional and outdated restaurant building into a more versatile, unrestricted by a time trend, income-generating space.

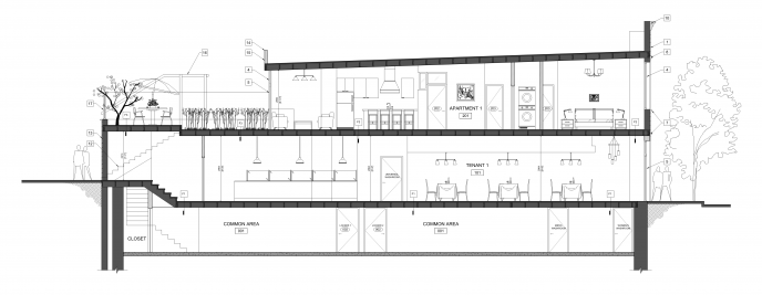
Image: Proposed Building Section
Image Credit: Pylons Architecture Inc.
Of course, this had multiple challenges, starting from figuring out a design that would fulfil all the requirements within the limitations of an existing space in addition to approvals and zoning change. We started by separating the two storeys, dedicating each of them to a different purpose; the ground floor divided into two rentable retail spaces, while the top floor was repurposed--more dramatically changed--into two residential apartments. We focused on use of natural light--from a neglected open roof deck space--and intelligent use of small space.

Image: Construction - Entrance
Photo Credit: Pylons Architecture Inc.

Image: Construction- Second Floor
Photo Credit: Pylons Architecture Inc.

Image: Construction- Exterior Elevation
Photo Credit: Pylons architecture Inc.
After being done with the design challenges, came the challenge of dealing with the surprises that arise from renovating an existing space; from electrical, plumbing and duct reconfiguration after opening up walls and altering the design to include or avoid.

Image: After – Exterior Elevation
Photo Credit:Pylons Architecture Inc.
The end result was remarkable, with the organized cooperation between all team members: designers, consultants and contractors, we were able to achieve an elegant yet neutral and fresh exterior elevation suitable for any retailer for as long as they might need it.

Image: After – Apartment 1 main area
Photo Credit: Cindy La

Image: After – Apartment 2 main area
Photo Credit: Cindy La

Image: After – Apartment 1 roof patio
Photo Credit: Cindy La
Dividing the top storey into two modern apartments with bright interiors, roof decks and access to the city core. We also managed to design distinct separate entrances for both the residential and the commercial parts of the project, ensuring privacy and functionality.
This post forms a part of our fall blOAAg series “Renovation + Relocation” exploring architects’ renovation stories. Check out the other posts in our series for more great buildings across the province!