This post is part of our winter 2019 blOAAg series, Housing Affordability: Built-Form Case Studies. The featured case studies are from the OAA’s 2019 report titled, Housing Affordability in Growing Urban Areas, produced by the OAA’s Housing Affordability Task Group and SvN Architects + Planners.
Case Study 06: Pocket Suites | Architect: Cohlemyer Architecture Ltd.
Location: Winnipeg, MB | Year: 2005
Program: Two storeys, eight units with separate entrances | Size: 20 sq.m per unit
At an average size of 230 sq. ft., per unit, the suites are an affordable housing model that offers a suitable alternative to rooming houses for low-income single persons, one type of housing need often overlooked in Manitoba.

Left: Exterior view of Pocket Suites Building | Right: Site Plan | Cohlemyer Architecture Ltd.
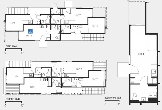
Each building is two storeys high and has 8 units each with separate entrances, private washrooms, and separate ventilation systems. Each Pocket House features three barrier-free suites and one fully accessible suite on the main floor, with four other suites on the second level accessible by two outside staircases. Each suite has a built-in cooking area complete with mini-fridge, microwave, sink, hot plate, dishes and cooking utensils. Suites also feature a single bed, a built-in table and a chair. The fully accessible main floor suite has modified doorways and a large roll-in shower for wheelchairs. All of the Pocket Houses meet the Manitoba Hydro requirements or being Power Smart and energy efficient signifying excellence in design and sustainability.

Left: Typical Floorplans | Right: Barrier-free Suite | Cohlemyer Architecture Ltd.

Elevations | Cohlemyer Architecture Ltd.
To date, four Pocket Houses have been built. In Winnipeg, two of the houses are located in the Centennial neighbourhood and two in the Spence neighbourhood. The majority of the suites within the houses have been rented demonstrating successful project implementation. The City of Winnipeg has classified Spence and Centennial as two of Winnipeg’s highest need neighborhoods and Major Improvement Areas (MIAs), based on a variety of indicators (e.g., condition of housing, rental and ownership rates, unemployment and poverty rates, income levels, incidence of crime). These neighbourhoods also have a significant proportion of one-person households, residents living in rental accommodations, and households with incomes under $20,000 per year based on the 2001 Census results.

Exterior view of Pocket Suites Building | Cohlemyer Architecture Ltd.
Further Reading:
http://www.cohlarch.ca/
_________________________________________________________________________________________________________
Official release date of the full report to be announced shortly.
The report, Housing Affordability in Growing Urban Areas, was prepared by SvN Architects + Planners Inc. (John van Nostrand, Liana Bresler and Blair Scorgie with the support of Eric Pitre and Jorge Quesada Davies), with the direction and assistance of the OAA Housing Affordability Task Group.