Be aware   Severe weather expected in your area this afternoon. Stay informed and follow local guidance.

Skip to content Skip to Navigation

Back

Responsive Web Sepia 2013 12 23 12.35 (MobileHero 0 Breakpoint) Web Sepia 2013 12 23 12.35 (DesktopHero 0 Breakpoint)

The Storage Shelter (2014)

In this post of our winter blOAAg series, “Temporary Architecture: Pavilions, Structures and Follies,” we take a look at a lumber structure created for a non- profit organization by Toronto-based Lowell Lo Design Inc. Architect.

From the Architect
 
Designer: Lowell Lo Design Inc. Architect
Type: Small Structure
Location: Toronto, Ontario
 
The Storage Shelter was created for PermacultureGTA—a recently established green, social, non-profit organization in Toronto in the autumn of 2014.


PermacultureGTA
Image Credit: Lowell Lo Design Inc. Architect
 
The structure was located on the front lawn of an industrial building in East York. It was conceived as part of a green, social movements happening in many cities around the world that are referred to under the umbrella term of “permaculture.” This involves designing more permanently and holistically, using principles from nature. This architect sees it as a way of design harking back to Old World cultures before the advent of the Industrial Revolution—a design that does not depend on non-renewable energy power infrastructure. 


Skid Storage Drawing
Drawing and Design Credit: Lowell Lo Design Inc. Architect
 
 


Skid Storage
Image and Design Credit: Lowell Lo Design Inc. Architect

The Shelter was designed and constructed entirely by volunteers. It was made of used warehouse skids and used lumber, and put together with ceramic screws. The size of the shelter was less than 108 ft2, thus requiring no building permit. There was no foundation such as pier columns or continuous foundation. The structure was anchored by the weight of the warehouse skids and by the rigid overall L-shaped plan configuration of the “skid walls.” Since it was an open walls structure, it also allowed wind to pass through. 


Planter Box build
Image and Design Credit: Lowell Lo Design Inc. Architect
 


Planter Box Drawings
Drawing and Design Credit: Lowell Lo Design Inc. Architect
 

Seedling Grow-Light Stand 
Image and Design Credit: Lowell Lo Design Inc. Architect
 

Planter Stand
Image and Design Credit: Lowell Lo Design Inc. Architect

The Shelter was used to store tools and materials for the adjacent vegetable garden (located in the front yard of the industrial building), promoting the concept of urban agriculture in an industrial setting. About a dozen sub-irrigated planter boxes (donated) were placed around the structure to display the growing of organic food using novel means. This low-cost prototypical structure could be used for the storage of garden materials or as market stands during farmers’ market events. 


Rain Barrel Stand
Image and Design Credit: Lowell Lo Design Inc. Architect
 

Rain Barrel Stand Drawing
Drawing and Design Credit: Lowell Lo Design Inc. Architect


Skid Storage with Rain Barrel
Image and Design Credit: Lowell Lo Design Inc. Architect

Skid Storage with Rain Barrel
Image and Design Credit: Lowell Lo Design Inc. Architect

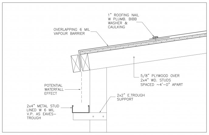
The roof shape was conceived to collect roof water to a 24” diameter rain barrel located at the corner of the structure. The extended-corner double roof rafters are “downward pointing,” carrying a metal chain at their ends so water can be drained into the barrel. The eavestroughs were 8’ long 2x4” metal studs lined with a 6-mil vapour barrier; they sloped and cascaded down to the corner of the structure to intersect with the metal chain carried by the extended downward pointing corner rafters and into the barrel.


Skid Storage Roofing Detail
Drawing and Image Credit: Lowell Lo Design Inc. Architect


Skid Storage Roof and Eavestrough
Image and Design Credit: Lowell Lo Design Inc. Architect

Skid Storage Roof and Eavestrough
Image and Design Credit: Lowell Lo Design Inc. Architect

Skid Storage Roof
Image and Design Credit: Lowell Lo Design Inc. Architect

The roofing material on top of the used plywood sheets was also a 6-mil vapour barrier. Overlapping pieces ran horizontally across the roof and were held down only by roofing nails and plumber’s flat bibb washers with caulking. The 6-mil vapour barrier materials were folded down around the inner ledger board at the ends of the rafters, and were shimmed out to create a gap for water drainage; all were finished with an outer ledger eave board. The metal-stud eavestroughs were located about 8” lower from the edge of the roof plane to create a potential of a waterfall effect when the rain dropped into the gutter.
 
This post forms part of our winter blOAAg series, “Temporary Architecture: Pavilions, Structures and Follies,” which explores architecture made for a temporal situation. Check out the other posts in our series for more great buildings across the province!
 
Share
Flag as Inappropriate
Calendar Icon

Events Calendar

Check out our events calendar for a wide array of online and in-person events. Also submit an event using our online form.

MORE
BLOAAG icon

BLOAAG

Check out the OAA BLOAAg, an inclusive space for member engagement and OAA features.

MORE
Contracts banner

OAA Contract Suite

Did you know the OAA offers free contracts for its members and the general public? These downloadable standardized contracts make it easier for all to enter into fair, balanced business relationships.

MORE