Be aware   Severe weather expected in your area this afternoon. Stay informed and follow local guidance.

Skip to content Skip to Navigation

Bloaag

Welcome to the blOAAg (the OAA blog)!

An inclusive space for membership engagement, the blOAAg is a section of the OAA Website for posting content and ideas to share with the entire OAA community. The views and opinions expressed in these posts are those of the authors, and do not necessarily reflect the official policy or position of the Ontario Association of Architects or the OAA Council.  

You must be an Architect, Intern architect, Student Associate, Life, Honorary, or Retired Member to post to the blOAAg. A username and password is required for access to this service.
Log in here.

2024 Queen's Park Picks
The OAA and MPPs Celebrate Ontario Architecture with Queen's Park Picks 
The OAA reveals the 2024 selections for its annual Queen’s Park Picks (QP Picks) program—a collaboration with Members of Provincial Parliament (MPPs) across the province who share a passion for our built environment in all its many forms.


Type
RadDatePicker
RadDatePicker
Open the calendar popup.
RadDatePicker
RadDatePicker
Open the calendar popup.
 

|

2016/FEB/19

|

21840

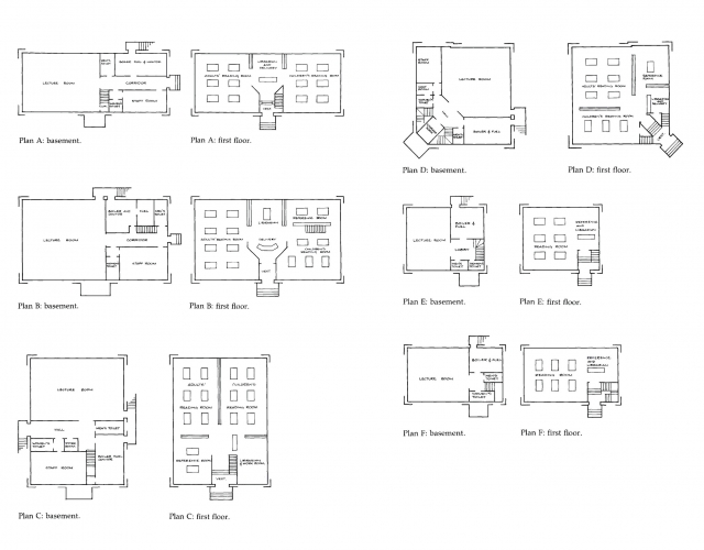
Of the 111 libraries funded by Andrew Carnegie in Ontario, none was larger (or more expensive) than Toronto’s first purpose-built central reference library at the corner of St. George and...

|

2016/JAN/11

|

21840

“Take away all unnecessary decorations, overmantels, over-counters, partitions, mock marble pillars and large hallways, and plan a well-proportioned room with books on the walls, small and few...


TOP
Calendar Icon

Events Calendar

Check out our events calendar for a wide array of online and in-person events. Also submit an event using our online form.

MORE
Contracts banner

OAA Contract Suite

Did you know the OAA offers free contracts for its members and the general public? These downloadable standardized contracts make it easier for all to enter into fair, balanced business relationships.

MORE
BLOAAG icon

BLOAAG

Check out the OAA BLOAAg, an inclusive space for member engagement and OAA features.

MORE